共存共栄
業務内容
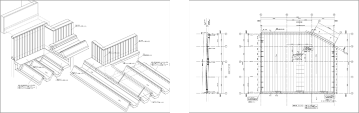
- ●折板屋根・外壁の施工図面作成
●メーカー問わず作図しています。
屋根メーカー(三晃金属工業・淀川製鋼所・元旦ビューティ工業・セキノ興産など)
●断熱パネルも作図しています。
(イソバンド・IGヴァンド)
小さな案件から大きな案件までおまかせください。








企業様の大切な技術・情報を扱う以上、守秘義務は最重要項目として契約書にて交わし、業務遂行をいたします。
また、弊社は外部ブレーンとして、量に応じてチームで業務を行い、ご要望・対応についてスムーズな業務進行をお約束いたします。
納品形態・データ形式などについても、お気軽にご相談ください。
臨機応変に対応させていただきます。